
Vi lever i den antropocæne tidsalder – hvilket betyder, at vi lever i en tidsalder, hvor det primært er menneskets aktiviteter, der former verden og Ikke kun naturens egne processer som tidligere.
I det moderne industrisamfund ser vi ikke vores naturgivne omgivelser som en betingelse vi skal respektere, men som noget der skal føje sig vores vilje og ønske. Vi bygger vores byer ud i vandet på kanten af havet, i inddæmmede kystområder og på drænet jord. Vi bygger store veje der graver sig vandret gennem det bølgede landskab; Og vi har udlagt store dele af vores land til intensivt landbrug. Altsammen noget der former det landskab vi lever og bor i.

Om at ligge smukt i landskabet
Det forhold at vi nu selv i stor udstrækning kan forme det landskab vi bor i, synes samtidig også at gøre vores søgen efter det oprindelige landskab større. Måske fordi det landskab vi som samfund selv har formet primært er præget af monotoni og nytte, og ikke med det store blik for skønhed.
Den danske landskabsarkitekt Sven-Ingvar Anderssons skrev i 1988 et fint lille skrift: “BYGNINGER OG LANDSKAB – Spredte tanker om at ligge smukt i landskabet”. Heri beskriver han nutiden som en tid med svage landskabelige bindinger, hvilket kan tolkes netop som jeg har gjort ovenfor. Altså at vi som samfund er af den opfattelse, at vi ikke behøver at respektere det naturgivne grundlag, når vi former vores fysiske miljøer.

Problemet er, at vi så står i en situation, hvor vi ikke intuitivt kan forstå den bundne logik, der er kernen i at ligge smukt i landskabet. Andersson forklarer hvordan førindustrielle byer altid blev placeret i relation til landskabet som en grundliggende betingelse: Gerne på den tørre kant af et vådområde ved en vandvej. Og gerne ved vadestedet. Og gerne med et landskab der gjorde forsvar muligt. Der var på den måde en umiddelbar genkendelig logik, der på en smuk måde fortalte om en balance mellem by og det på stedet givne landskab.
Et forhold som landskabsmalerne i barokken lurede og inddrog i deres æstetiske, malede fortolkninger af landskabet. Og som landskabsarkitekterne med tiden overtog i udformningen af landskabs- og haveanlæg. Man studerede det eksisterende landskabs betingelser, som scene for placering af bygnings- og planteelementer, der hermed til sammen dannede en oplevelse af at elementerne lå smukt i landskabet.

Denne lidt snørklede omvej bringer mig hen til huset i dette indlæg… Et fantastisk smukt arkitekttegnet hus, der netop ligger smukt i landskabet. Ikke fordi det nødvendigvis er tænkt og arrangeret sådan, men nærmere fordi det som et gammelt bondehus, ligger naturligt placeret midt i landskabet, tæt på jorden, tæt på havet og de nødvendige ressourcer. Der er noget typisk og ærkedansk over det landskabsscenarium.
Huset, der ligger smukt i det kuperede landskab tæt på Havnebyen på nordsiden af Sjællands Odde, er oprindeligt fra 1897, men er netop blevet gennemrenoveret. En vigtig pointe i denne forbindelse er, at så meget som muligt af det oprindelige (temmeligt faldefærdige) hus er søgt genbrugt. Dermed ligger det nyrenoverede hus på akkurat samme måde i landskabet som det oprindelige har gjort i over 120 år….

Det modernistiske bondehus

Jeg har i tidligere indlæg skrevet om hvordan den anden bølge af dansk modernisme var inspireret af bindingsværkshuset. (se f.eks. dette indlæg …) Der er noget af den samme viderefortolkning på dansk bygningskultur her: de hvidpudsede vægge og skorstenen. Stråtaget med den høje rejsning og det sortmalede træværk.

Et af de modernistiske huse jeg umiddelbart kom til at tænke på, da jeg først så dette arkitekttegnede hus på Sjællands Odde, var arkitekt Erik Korshagens eget fritidshus fra 1960. Hans hus ligger ikke så langt fra dette, i Rørvig. Korshagens hus er et træhus på søjler, og man kan selvfølgelig sige, at det ligger langt fra et renoveret bondehus godt funderet i mulden. Men se billedet nedenfor og døm selv om ikke stråtaget og de sortmalede træfacader har mange lighedspunkter…. Planløsningerne har også mange lighedspunkter. Og begge huse er efter min mening meget smukke…. Du kan se Korhagens hus HER

Den sorte hule
Husets indre rumlighed er stram og enkel, hvilket ligger meget godt i tråd med den meget modernistiske plan (en åben planløsning med husets funktioner placeret som kerner midt i planen). Men modsat mange af de modernistiske villaer med fladt tag fra 1960’erne som jeg tidligere har skrevet om, er husets indre her åbent helt til kip – og hvilken rumlighed 😀


Læg også mærke til hvordan man kan genkende resterne af det gamle hus, der ligger gemt i det nye renoverede lag. De gamle vægge er kalkede hvide, så man tydeligt kan se sporene efter husets lange liv. Vinduerne i gavlen er udformede som lyshuller uden ramme, hvilket udelader en diskussion om hvorvidt, der skal være småsprossede jernindrammede vinduer eller lignende i hullerne. De er blot spor af en anden tid.
Og så skal man jo ikke overse pejsen, ildstedet som det centrale omdrejningspunkt. Et motiv der genfindes i mange modernistiske hus med åbne planløsninger. Bl.a. hos mesteren Frank Lloyd Wright og hos vores egen Bertel Udsen….

Som overskriften antyder er der mange sorte flader i huset. Men det er ikke sortmalede, karakterløse flader. Det er bræddebeklædning der er behandlet efter den japanske metode Shou Sugi Ban, hvilket betyder at træets overflade er brændt. Overfladen forkuller let og lukkes herved, så træet er beskyttet mod ydre påvirkning.

Den mørke hulefornemmelse doseres, så husets private rum er de mørkeste. Det giver en tryghedsfornemmelse og samtidig rettes blikket ud mod landskabet udenfor. Næsten som i et kamerahus, hvor lyset og omgivelserne kun slipper ind gennem linsen.
Huset er på alle måder et billedskønt arrangement. Både i sit indre, sit ydre og i måden det ligger smukt i landskabet.
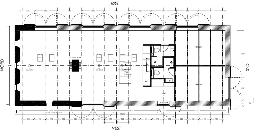
Plantegning

Plantegning af huset, hvor man tydligt ser at indretningen ikke længere ligner et bondehus fra 1897, men nærmere en modernistisk bolig fra 1960erne. Der er lagt vægt på at skabe et stort åbent rum, der hvor livet leves (køkken-alrum), mens de mere private soverum er trukket ned i husets sydlige ende.
Huset er til salg hos Adam Schnack Ejendomsmægler
Alle foto i indlægget er fra ovennævnte mægler, hvis andet ikke er nævnt.
Fotograf: Lars Gundesen. Tak for lån 😀
Se husets placering på Google Maps:
