
En hule, tænker du…? Det må være noget med, hvor brutal, rå og rustik denne bolig er… Ja, men det handler lige så meget om, hvor hyggelig, tryg og menneskelig den er….
… for huset på Skæring Strandvej 2 i Egå er tegnet af arkitekterne Knud Friis og Elmar Moltke i 1972, og de to mestrede om nogen at balancere netop det brutale og rå med det trygge og menneskelige i arkitekturen.
Det var en sans for at skabe boliger til det levede, praktiske liv, mere end det iscenesatte, idealiserede liv, der var og er styrken i de bedst af Friis & Moltkes huse. Huse der fokuserer på de indre kvaliteter til glæde for beboerne og ikke bruger krudt på at imponere de forbipasserende. Det er den slags huse, arkitekter kalder ærlige huse, der ikke udgiver sig for andet og mere, end det de er.

De tre små huse
Bevæger du dig ud af Aarhus mod nord, kan du vælge at køre langs bugten gennem Risskov og Egå mod Skæring. Her kommer du forbi flere fine kig til vandet og ikke mindst flere smukke arkitekttegnede huse af den eksklusive slags. På din vej vil du måske have overset et af de fineste – som netop er huset her på Skæring Strandvej 2.
Huset skriger ikke på opmærksomhed, men forsøger på mange måder at undvige det pompøse og larmende: Huset, vender ryggen mod vejen, er lavt og opdelt i tre mindre huse. De rødbrune tegl, det sorte træværk, betonoverliggere og tag falder næsten i ét med omgivelserne. På den måde er det tydeligt, at det ikke umiddelbart er husets formål at imponere de forbipasserende.

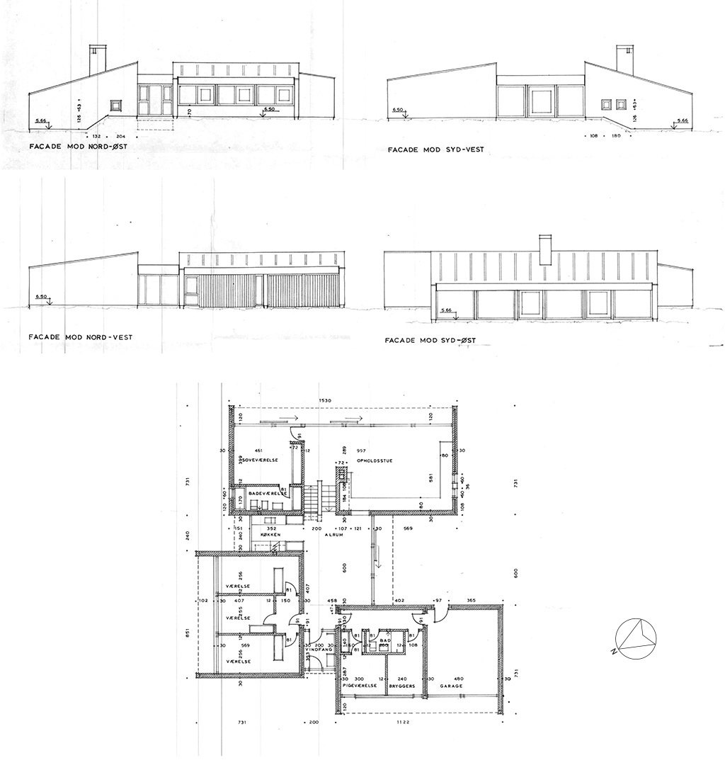
På 3D modellen nedenfor kan du vende og dreje huset, så du selv kan se, hvordan det er opbygget af tre små huse med ensidig taghældning, samlet omkring et indre, overdækket gårdrum.
Hus 1 – hule med udsigt
Husets facade mod øst og bugten putter sig i landskabet. Man aner de store vinduespartier, der åbner op for udsigten indefra huset. Udtrykket er enkelt, og man får heller ikke fra denne vinkel indtryk af et hus, der vil imponere.
Huset ligger cirka 60 cm forsænket i forhold til de andre to huse, og er det største af de tre. Huset følger på denne måde det landskab, det er bygget ind i: Terrænet falder nemlig oppe fra Skæring Strandvej ned mod stranden og bugten. Huset føjer sig landskabets forløb og ikke omvendt.
I huset er stue med stor pejs, soveværelse og badeværelse – og ikke mindst en formidabel udsigt.



Den store massive, murede pejs og de murede bænke, samt den omfavnende tilstedeværelse af naturmaterialer og -farver, giver den hulefornemmelse, jeg nævner i overskriften. Den ensidige taghældning, der falder mod udsigten og bugten, klemmer hulens åbning sammen som, når man kniber øjnene sammen i stærk modlys for at orientere sig. Det skærper fokus på lyset og udsigten.
Akkurat som i en hyggelig, tryg hule sætter man sig også her instinktivt op ad hulens bagvæg, med den varme ild fra ildstedet ved sin side, mens man trygt overskuer verden udenfor.


Hus 2 – værelser til børnene
Hus 2 ligger mod nordøst og har om sommeren glæde af morgensolen. Her har Friis og Moltke placeret tre værelser. En meget klar og enkel definition af husets funktion.
Væggene i værelserne består, som i resten af huset, af rå mursten, det man i fagsprog kalder en blank mur. En udseende, nogle måske synes, er lidt for rå i et interiør. Men jeg synes, man skal lægge mærke til nogle detaljer:
- 1. Hvor meget det betyder, at stenene er håndstrøgne, hvilket betyder, at overfladen på hver enkelte sten er afrettet med hånden, da stenen blev formet. Derfor har denne type sten en større variation i overfladen, hvilket skaber en levende overflade.
- 2. Stenenes rødbrune og varme farve, der er med til at skabe en hyggelig, tryg hulestemning.
- 3. Den brede fuge, med en mørtel iblandet strandsand, der giver en synlig blød overflade og farve. Lidt nørdet, men egentlig ret vigtigt, synes jeg 😀

Hus 3 – de praktiske rum
Hus 3 ligger mod nordvest ud mod Skæring Strandvej. Her er ét værelse, bryggers, bad og en dobbelt garage. Arkitekturen er identisk med huset som helhed, dog har hus 3 en mere lukket facade, der sammen med placeringen af servicerende funktioner i samme hus ud mod Skæring Strandvej understreger Friis og Moltkes ønske om at vende ryggen mod offentligheden. Det er husets private liv, der prioriteres i arkitekturen.


Rummet i midten – hjemmets mødested
Min fortælling om huset på Skæring Strandvej 2 har måske efterladt dig med billedet af tre små adskilte huse, og du er begyndt at tvivle på, om det overhovedet er ét hus, Friis og Moltke tegnede i 1972.
Men fortvivl ej. Husets styrke er faktisk det rum, der ligger i mellemrummet mellem de tre små huse. Det rum har umiddelbart ingen form i sig selv, men opstår som et overskudsrum mellem de tre huse, og fungerer som limen mellem dem.
Her er husets sociale midtpunkt og mødested med køkken, alrum og adgang til alle 3 huse. Der er også adgang til en sydvendt terrasse, der ligger i læ mellem hus 1 og 3. Som man kan se nedenfor, er gang- og synslinjer tænkt ind i dette rum. Fra entréen kan man gå i én lige linje ned til stuen med den store pejs og i samme bevægelse holde blikket rettet mod bugten lige frem.




En af de fascinerende ting ved huset er, at det stort set fremstår uændret, som da det blev opført i 1972. Dvs. at køkken og fast inventar i det hele taget er, som Friis og Moltke har designet det….. Og det kan man kun sætte pris på, når man har set, hvordan eksempelvis originale køkkener skiftes ud med tidstypiske snedkerkøkkener, der overhovedet ikke passer til den eksisterende arkitektur. Her på Skæring Strandvej 2 hænger arkitekturen sammen i én helhed, der næsten kunne kræve en fredning… 😀
Den trygge hule som arketype
“I hulen fandt jeg resterne af en primitiv kultur, dvs. den primitive verden i mig selv, som næppe mere kan nås af bevidstheden eller oplyses af den. Menneskets primitive sjæl ligger tæt op ad dyresjælen, ligesom oldtidens hule ofte var beboet af dyr, før mennesket gjorde krav på den for sig selv.” (Jung, C. G. “Erindringer, drømme, tanker”, Lindhardt og Ringhof 1984, s.139). Citatet er hentet HER


Hulen er på mange måder arketypisk for den menneskelige bolig, og jeg synes, at Friis og Moltkes arkitektur på Skæring Strandvej 2 rammer essencen af denne arketype. Det handler om den tryghed, vi helt basalt set og oftest ubevidst søger i vores bolig. En tryghed som alle levende og følende organismer deler, som den østriske psykiater Carl Gustav Jung skriver i citatet ovenfor.
Det er en brutal, rå og rustik bolig, som jeg skrev i indledningen, men også en hyggelig, tryg og menneskelig bolig. En bolig uden fine fornemmelser men med sans for det gode levede liv på stranden ved bugten.
Man søger ly i hulen, undskyld huset, når regnen kommer, vinden blæser eller mørket falder på – Sådan er den arkitekttegnede hule ved bugten.
Friis & Moltke arkitekters tegninger af huset på Skæring Strandvej 2
Huset på Skæring Strandvej 2 har et boligareal på 180m2 og ligger på en grund på 1.711m2 i første række til Aarhus Bugt. Du kan klikke på tegningerne for at se hele tegningssættet fra byggesagsarkivet. 😀
Huset er til salg hos Lokalt Liebhaveri
alle foto, er hvis andet ikke fremgår fra ovennævnte mægler – tak for lån 😀








